Thiết kế bản vẽ lăng mộ đá chuẩn phong thủy

Bản vẽ lăng mộ đá là bước khởi đầu quan trọng trong quá trình thiết kế và xây dựng công trình tâm linh. Một bản vẽ chi tiết không chỉ giúp gia chủ hình dung rõ ràng về kiểu dáng, kích thước, họa tiết mà còn đảm bảo tính phong thủy và độ bền vững lâu dài. Nhờ có bản vẽ, việc thi công trở nên chính xác, tiết kiệm thời gian, hạn chế sai sót và mang lại hiệu quả thẩm mỹ cao cho công trình.

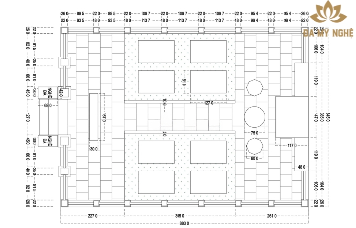
1. Bản vẽ lăng mộ đá là gì?

1.1. Khái niệm cơ bản về bản vẽ lăng mộ đá

Bản vẽ lăng mộ đá là bản thiết kế kỹ thuật thể hiện chi tiết các yếu tố của công trình như: kích thước, kiểu dáng, kết cấu, hoa văn chạm khắc và bố cục tổng thể. Đây là cơ sở quan trọng để hình dung trước sản phẩm hoàn thiện, đảm bảo lăng mộ không chỉ đẹp về thẩm mỹ mà còn đúng theo yêu cầu phong thủy và nhu cầu sử dụng của gia đình.

Bản vẽ lăng mộ đá
Bản vẽ lăng mộ đá

1.2. Vai trò trong quá trình thiết kế và thi công

  • Định hướng ý tưởng thiết kế: Bản vẽ giúp gia chủ dễ dàng lựa chọn phong cách kiến trúc phù hợp như lăng mộ đá đơn, lăng mộ đá đôi hay quần thể lăng mộ lớn.
  • Đảm bảo độ chính xác cao: Mọi thông số đều được thể hiện rõ ràng, giúp thợ thi công có cơ sở để chế tác và lắp đặt, hạn chế tối đa sai lệch.
  • Tiết kiệm chi phí & thời gian: Khi đã có bản vẽ chi tiết, quá trình thi công diễn ra nhanh chóng, tránh phát sinh thêm chi phí ngoài dự kiến.
  • Đáp ứng yếu tố phong thủy: Các chi tiết trong bản vẽ được nghiên cứu kỹ lưỡng theo tuổi, mệnh của gia chủ, đảm bảo mang lại sự bình an, hưng thịnh cho con cháu.

1.3. Ứng dụng: thiết kế 2D, 3D và phối cảnh

  • Bản vẽ 2D: Thể hiện kích thước và bố cục cơ bản, phù hợp cho việc đo đạc và thi công.
  • Bản vẽ 3D: Tái hiện công trình trong không gian ba chiều, giúp gia chủ có cái nhìn trực quan và dễ dàng so sánh các mẫu thiết kế.
  • Bản vẽ phối cảnh: Mô phỏng lăng mộ đặt trong không gian thực tế, từ đó cho thấy sự hài hòa giữa công trình với cảnh quan xung quanh.

2. Các thành phần thường có trong bản vẽ khu lăng mộ đá

Một bản vẽ lăng mộ đá hoàn chỉnh không chỉ thể hiện mộ phần mà còn mô tả đầy đủ các hạng mục cấu thành nên khu lăng mộ. Những chi tiết này vừa mang giá trị tâm linh, vừa góp phần tạo nên sự bền vững, trang nghiêm cho công trình. Dưới đây là các thành phần phổ biến thường xuất hiện trong bản vẽ:

2.1. Mộ đơn, mộ đôi, mộ tròn

  • Mộ đơn: Thường dành cho một người, thiết kế đơn giản, gọn gàng, dễ thi công.
  • Mộ đôi: Phù hợp cho hai người (thường là vợ chồng), thể hiện sự gắn kết, sum vầy.
  • Mộ tròn: Mang ý nghĩa phong thủy tốt, tượng trưng cho sự viên mãn, trường tồn.
    Các loại mộ này thường được thể hiện rõ ràng trong bản vẽ về kích thước, hoa văn và vị trí trong tổng thể khu lăng.
Bản vẽ mộ đá đẹp
Bản vẽ mộ đá đẹp

2.2. Lan can, hàng rào đá

Lan can và hàng rào đá bao quanh giúp định hình khuôn viên lăng mộ, tạo sự trang trọng và bảo vệ khu vực bên trong. Trong bản vẽ, phần này thường được thể hiện bằng các hoa văn truyền thống như hoa sen, tứ linh, hoa lá cách điệu…

Bản vẽ lan can đá
Bản vẽ lan can đá

2.3. Cổng đá, cuốn thư, bậc tam cấp

  • Cổng đá: Là lối ra vào chính, được thiết kế với các trụ cột vững chãi.
  • Cuốn thư: Đặt ở vị trí trung tâm, mang ý nghĩa che chắn tà khí, đồng thời khẳng định sự uy nghi của công trình.
  • Bậc tam cấp: Thường đi kèm với cổng, thể hiện sự phân tách rõ ràng giữa không gian bên ngoài và bên trong lăng mộ.

2.4. Bàn thờ, đèn đá, lư hương

Đây là những hạng mục thờ cúng không thể thiếu. Trong bản vẽ, vị trí của bàn thờ, đèn đá và lư hương thường được bố trí ở khu vực trung tâm, đảm bảo thuận tiện cho việc dâng hương và phù hợp với phong tục truyền thống.

2.5. Hướng đặt, kích thước, phong thủy

Một yếu tố quan trọng trong bản vẽ khu lăng mộ đá là cách xác định hướng đặtkích thước. Các thông số này phải được tính toán theo thước Lỗ Ban và dựa trên tuổi, mệnh của gia chủ. Sự chuẩn xác trong phong thủy giúp công trình mang lại bình an, may mắn và phúc lộc cho con cháu đời sau.

3. Phân loại bản vẽ lăng mộ theo kiểu dáng

Tùy theo nhu cầu của từng gia đình, điều kiện kinh tế và yếu tố phong thủy, các bản vẽ lăng mộ đá được thiết kế theo nhiều kiểu dáng khác nhau. Mỗi loại sẽ có đặc điểm riêng về bố cục, vật liệu và ý nghĩa tâm linh. Dưới đây là một số mẫu phổ biến:

3.1. Bản vẽ khu lăng mộ đơn giản

Đây là dạng bản vẽ tập trung vào sự tối giản, thường chỉ bao gồm một số hạng mục cơ bản như mộ phần, lan can đá và bàn thờ. Ưu điểm là tiết kiệm chi phí, phù hợp với diện tích nhỏ nhưng vẫn đảm bảo sự trang nghiêm và bền vững.

Bản vẽ khu lăng mộ đơn giản
Bản vẽ khu lăng mộ đơn giản

3.2. Bản vẽ khu lăng mộ tứ quý, khuôn viên đầy đủ

Loại bản vẽ này mang tính quy mô, thường có đầy đủ hạng mục như: mộ phần, lan can, cổng đá, cuốn thư, đèn đá, lư hương, bậc tam cấp và hệ thống tiểu cảnh. Trong đó, hình tượng tứ linh – Long, Lân, Quy, Phượng hoặc tứ quý – Tùng, Cúc, Trúc, Mai được chạm khắc tinh xảo, thể hiện sự sung túc và vĩnh cửu. Đây là lựa chọn lý tưởng cho những gia đình muốn xây dựng quần thể lăng mộ lớn, mang giá trị truyền thống lâu dài.

3.3. Bản vẽ lăng mộ Công giáo

Đặc trưng của bản vẽ lăng mộ Công giáo là có thêm các chi tiết mang ý nghĩa tôn giáo như thánh giá, hoa văn Kito giáo hoặc tượng thánh. Kiểu dáng thường đơn giản, chú trọng sự trang nghiêm và tinh thần tín ngưỡng. Vị trí bàn thờ, mộ phần và hướng đặt cũng được sắp xếp phù hợp với quy chuẩn của đạo Công giáo.

Bản vẽ lăng mộ Công giáo
Bản vẽ lăng mộ Công giáo

3.4. Bản vẽ lăng mộ đá xanh rêu cao cấp

Đây là dạng bản vẽ dành cho công trình lăng mộ cao cấp, sử dụng đá xanh rêu tự nhiên – loại đá quý hiếm, có màu sắc sang trọng và độ bền vượt trội. Trong bản vẽ, các chi tiết hoa văn thường được chạm khắc tinh tế, đường nét mềm mại, tạo nên tổng thể vừa uy nghi vừa tinh xảo. Lăng mộ đá xanh rêu mang lại giá trị thẩm mỹ cao, đồng thời thể hiện sự tôn kính và hiếu đạo của con cháu đối với tổ tiên.

4. Tiêu chuẩn thiết kế bản vẽ lăng mộ đá chuẩn phong thủy

Một bản vẽ lăng mộ đá không chỉ cần đẹp về thẩm mỹ mà còn phải tuân thủ các nguyên tắc phong thủy để mang lại sự bình an, hưng thịnh cho gia chủ. Dưới đây là những tiêu chuẩn quan trọng khi thiết kế:

4.1. Kích thước theo thước Lỗ Ban

Thước Lỗ Ban được coi là công cụ quan trọng trong việc đo đạc và chọn kích thước chuẩn phong thủy. Trong bản vẽ, các số đo chiều dài, rộng, cao của từng hạng mục như mộ đơn, mộ đôi, lan can hay bàn thờ đều cần được tính toán theo thước Lỗ Ban. Việc này giúp tránh điềm xấu và mang lại may mắn, phúc lộc cho con cháu.

4.2. Hướng lăng mộ hợp tuổi, mệnh

Hướng đặt lăng mộ là yếu tố then chốt trong phong thủy. Một bản vẽ chuẩn phải thể hiện rõ hướng quay mặt của mộ và tổng thể khu lăng. Việc lựa chọn hướng thường dựa trên tuổi, mệnh của gia chủ để đảm bảo sự hòa hợp với thiên – địa – nhân, đồng thời tránh những hướng xấu có thể ảnh hưởng đến vận khí của dòng họ.

4.3. Bố cục cân đối, thuận lợi về long – hổ – minh đường

Trong phong thủy âm trạch, bố cục lăng mộ phải cân đối và hài hòa. Cụ thể:

  • Long – Hổ: Hai bên trái và phải của khu lăng mộ nên có sự cân xứng, tượng trưng cho tả Thanh Long – hữu Bạch Hổ che chở.
  • Minh đường: Phía trước lăng mộ cần có không gian thoáng rộng, bằng phẳng để tụ khí và tạo sự uy nghiêm.

Một bản vẽ khoa học và chuẩn phong thủy luôn đảm bảo những yếu tố này.

4.4. Lưu ý về cấp thoát nước, chống sụt lún

Ngoài yếu tố thẩm mỹ và phong thủy, bản vẽ cũng cần chú trọng đến giải pháp kỹ thuật:

  • Hệ thống thoát nước: Tránh tình trạng ứ đọng, ngập úng gây ảnh hưởng đến kết cấu mộ.
  • Nền móng vững chắc: Cần được tính toán để hạn chế sụt lún, đảm bảo công trình trường tồn với thời gian.

Những tiêu chuẩn trên giúp bản vẽ không chỉ đẹp mắt mà còn mang lại sự bền vững và hợp phong thủy cho cả khu lăng mộ.

Một bản vẽ lăng mộ đá chi tiết và đúng chuẩn không chỉ giúp quá trình thi công diễn ra thuận lợi mà còn đảm bảo yếu tố tâm linh, phong thủy lâu dài cho cả dòng tộc. Việc đầu tư vào bản vẽ ngay từ đầu cũng giúp tiết kiệm chi phí và tránh những sai sót đáng tiếc. Nếu bạn đang cần tư vấn thiết kế hoặc tìm kiếm mẫu bản vẽ phù hợp, hãy liên hệ ngay với Đá mỹ nghệ Đức Kiên – đơn vị hàng đầu trong lĩnh vực thiết kế và thi công lăng mộ đá tại Việt Nam.

Để lại một bình luận

Email của bạn sẽ không được hiển thị công khai. Các trường bắt buộc được đánh dấu *

Call Zalo